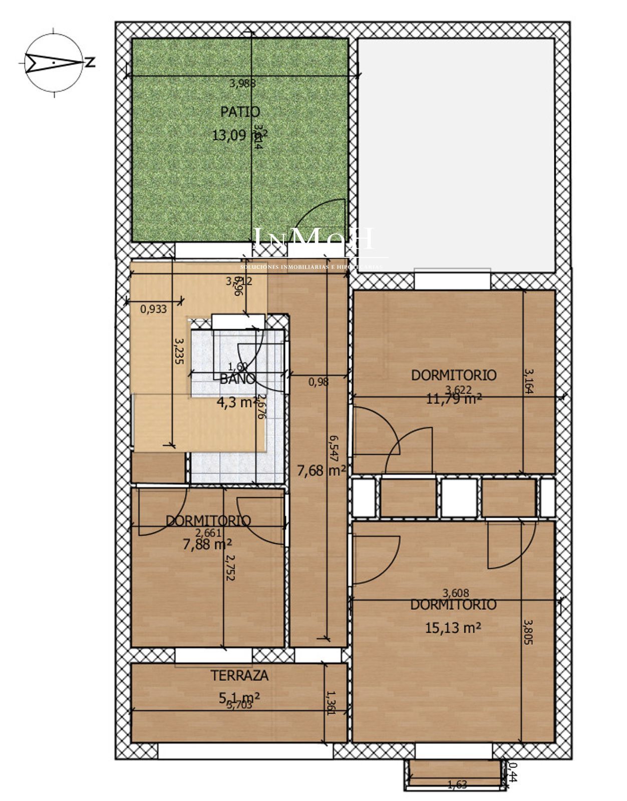
Adosado en venta situado en Chiclana de la Frontera, Cádiz, en la zona de AVENIDA DE LA LIBERTAD, con 164,00 m2 construidos y 122,51 m2 útiles, ofrece amplitud y confort en cada rincón. Distribuido en dos alturas, cuenta con 4 dormitorios espaciosos y 2 baños, además de una cocina amueblada y una chimenea que aporta calidez al salón. En planta baja se ubica un dormitorio, una opción muy práctica que en su momento se ha intentado unir al salón para crear un espacio abierto y diáfano. Este inmueble se entrega equipado con armarios empotrados que optimizan almacenamiento, puerta blindada para mayor seguridad y un sistema de aire acondicionado para mantener la temperatura estable durante todo el año.
La vivienda dispone de una terraza de 13,00 m2 que se presta para disfrutar del exterior sin salir de casa, perfecta para zonas de descanso o para preparar pequeñas reuniones al aire libre. Entre sus servicios, destacan el agua y la luz, así como un solárium que invita a tomar el sol o ampliar la zona de ocio en los días soleados. El garaje incluido facilita la movilidad diaria y añade comodidad para quienes buscan evitar búsquedas de aparcamiento. Es una propiedad de dos alturas que combina funcionalidad y distribución bien pensada para sacar el máximo partido a cada metro.
La ubicación reúne ventajas claras para familias y profesionales. Se encuentra rodeada de zonas con colegios y supermercados, lo que facilita las rutinas diarias y reduce tiempos de desplazamiento. Además, la entrada y salida de Chiclana presentan gran facilidad, lo que favorece desplazamientos rápidos hacia las principales conexiones de la zona. Este factor logístico se suma a la posibilidad de disfrutar de un entorno agradable y bien comunicado, con servicios cercanos que facilitan el día a día.
La vivienda se caracteriza por su luminosidad y amplitud, con dormitorios de gran tamaño que permiten moverse con comodidad y colocar mobiliario de gran escala sin complicaciones. La cocina está completamente equipada y lista para su uso inmediato, lo que aporta practicidad desde el primer día. La chimenea añade un punto de confort en el salón, especialmente en los meses de invierno, sin renunciar a la eficiencia del sistema de climatización actual. Todo ello complementado por un solarium que ofrece una extensión de la vivienda al aire libre para disfrutar de tardes tranquilas o celebrar reuniones sin necesidad de desplazarse.
InMoH Soluciones Inmobiliaria e Hipotecaria presenta este inmueble como una oportunidad atractiva para quienes buscan una vivienda amplia, bien ubicada y con elementos prácticos que facilitan el día a día. Su distribución, con dormitorio en planta baja y posibilidad de reorganizar el espacio para unir salón y dormitorio, ofrece opciones de personalización sin perder funcionalidad. El estado general de la vivienda es sólido, con acabados modernos y mejoras periódicas que han mantenido la propiedad al día. Si buscas una vivienda que equilibre confort, practicidad y una buena relación calidad-precio, esta opción en AVENIDA DE LA LIBERTAD de Chiclana puede ser la indicada para ti. Contáctanos para mas información o para concertar una visita y descubrir cada detalle de este adosado.
"El precio anunciado no incluye los impuestos de transmisión patrimonial (ITP, IVA o AJD), ni los gastos de notaría, registro y gestoría que correspondan al comprador según ley. Los honorarios de intermediación de compra inmobiliaria no están incluidos en el precio.
En cumplimiento con la Ley 10/2025 si desglosamos los posibles gastos de manera aproximada aunque estos pueden sufrir una variación dependiendo el precio final:
-Notaría: Según lo dictaminado en el art. 1455 Cod. Civil, serán de la parte compradora el coste de las copias notariales, salvo acuerdo expreso entre las partes. (350 €- 650 €) Según valor en notaría.
- Registro de la propiedad: Según el coste de la tasa de Registro de la Propiedad (300 €-700€)
- Impuesto de Transmisiones Patrimoniales: Porcentaje sobre el valor final de compraventa que en Andalucía el Régimen General es del 7% del valor final (excepto los casos establecidos para el 6% y 3,5%)
- Gestoría: En caso de compra con préstamo hipotecario, el coste de la Gestora de la entidad bancaria que se haga cargo de los procesos de inscripción final de la vivienda en el Registro.
- Honorarios de gestión e intermediación en compra de vivienda (inmobiliaria): En el caso de InMoH tenemos estipulado un valor del 2,5% más IVA (21%) del valor de compra.
Disponemos de la Ficha Informativa abreviada del inmueble (DIA) a disposición del consumidor según Decreto 218/2005 (o normativa autonómica equivalente)". Este documento será puesto a disposición del cliente en el momento de visita con InMoH, cumpliendo y dando base a la transparencia informativa sobre el inmueble y su potencial proceso de compra.
Características y precios válidos salvo error tipográfico.
InMoH Soluciones Inmobiliarias e Hipotecarias
C/ Santo Entierro 22 (San Fernando)
614306369
info@inmoh.es